
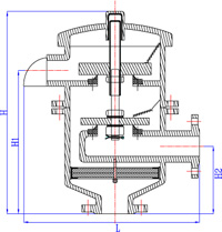
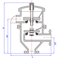
帶吸入接管呼吸閥(HXF-III型) 帶吸入接管阻火呼吸閥(HXF-IIIZ型)
Breather Valve With Suction Nozzle Flame Arresting Breather Valve With Suction Nozzle

帶吸入接管阻火呼吸閥“設備材質” Materials of construction:
NO | 1 | 2 | 3 | 4 | 5 | 6 |
構件 Component | 殼體 Body | 閥桿 Stem Guide | 閥盤 Pressure Disk | 閥座 Pressure Seat | 墊片 Gasket | 阻火芯件 Fire Arresting |
材質 Material | 不銹鋼 Steel 鋁合金 Aluminums 碳鋼 Casting | 304 316 316L PTFE | 304 316 316L PTFE | 304 316 316L PTFE | 304 316 316L PTFE | 304 316 316L PTFE |
注:連接標準:HG 、GB、 ANSI、 JIS、 DIN等等.
Standard Connection:HG、GB、ANSI、JIS、DIN、ect.
操作壓力:-295pa-+98000pa (-30mmH2O——+10000mmH2O)
Operating Pressure:-295pa-+98000pa (-30mmH2O——+10000mmH2O)
帶吸入接管阻火呼吸閥“尺寸表” Dimension table:
DN | 25 | 32 | 40 | 50 | 80 | 100 | 150 | 200 | 250 | 300 |
L | 280 | 300 | 320 | 320 | 450 | 450 | 620 | 750 | 850 | 1100 |
H | 300 | 320 | 350 | 350 | 500 | 500 | 600 | 700 | 820 | 900 |
帶吸入接管阻火呼吸閥“訂貨須知” Order Construction:
1、訂貨時請注明產品尺寸、操作壓力及材質。
Please give clear indication of Dimension,operating pressure and material.
2、當需要其他標準法蘭、材質或操作壓力時請在訂貨時注明。
Please give clear indication of flange,material and operating pressure if you need other standard.
返回:呼吸閥系列
塑料呼吸閥的具體應用說明
2014-11-01氣閥中密封設備有著很重要的使用
2014-08-06深度解析呼吸閥三大為人所知的性能
2014-08-06呼吸閥價格本金產量方法
2015-05-11機械呼吸閥的工作原理及呼吸量方式
2014-12-08阻火呼吸閥的常見故障排除方法
2016-10-18定期對閥門檢測有很好的安全作用
2014-08-06華電青島熱打開閥門未經許可,導致淹水公眾之家
2017-10-11從呼吸閥行業網絡營銷的興起及衰敗看生意經
2015-07-17阻火呼吸閥工作原理是什么?
2014-10-29