
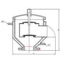
夾套保溫(阻火)呼吸閥(HXF-J型) Flame Arresting Breather Valve With Jacketed

夾套保溫阻火呼吸閥“設備材質” Materials of construction:
NO | 1 | 2 | 3 | 4 | 5 | 6 |
構件 Component | 殼體 Body | 閥桿 Stem Guide | 閥盤 Pressure Disk | 閥座 Pressure Seat | 墊片 Gasket | 阻火芯件 Fire Arresting |
材質 Material | 不銹鋼 Steel 鋁合金 Aluminums 碳鋼 Casting | 304 316 316L PTFE | 304 316 316L PTFE | 304 316 316L PTFE | 304 316 316L PTFE | 304 316 316L PTFE |
注:連接標準:HG 、GB、 ANSI、 JIS、 DIN等等.
Standard Connection:HG、GB、ANSI、JIS、DIN、ect.
操作壓力:-295pa-+98000pa (-30mmH2O——+10000mmH2O)
Operating Pressure:-295pa-+98000pa (-30mmH2O——+10000mmH2O)
夾套保溫阻火呼吸閥“尺寸表” Dimension table:
DN | 25 | 32 | 40 | 50 | 80 | 100 | 150 | 200 | 250 | 300 |
L | 160 | 160 | 160 | 160 | 213 | 265 | 355 | 420 | 480 | 550 |
H | 255 | 255 | 255 | 255 | 260 | 290 | 330 | 430 | 500 | 510 |
夾套保溫阻火呼吸閥“訂貨須知” Order Construction:
1、訂貨時請注明產品尺寸、操作壓力及材質。
Please give clear indication of Dimension,operating pressure and material.
2、當需要其他標準法蘭、材質或操作壓力時請在訂貨時注明。
Please give clear indication of flange,material and operating pressure if you need other standard.
返回:呼吸閥系列
氣閥有著特別的品質及優秀的特性
2014-08-06阻火呼吸閥廠商靠產品質量能否度過危機?
2015-11-07全民創業對阻火呼吸閥行業有什么影響?
2015-11-14傳統手動閥氣動閥PK新型呼吸閥
2014-09-06阻火呼吸閥常見故障及檢測系統
2017-05-09LTHF-5型接管式呼吸閥的特點與性能
2014-10-22抱團取暖才是呼吸閥生產廠家走出困境的方法
2015-11-17呼吸閥使灑水車罐內外氣壓不致
2014-10-23阻火呼吸閥企業要想走上國際舞臺唯有抱團
2015-07-052015年的石化行業市場為何如此蕭條?
2015-11-20