
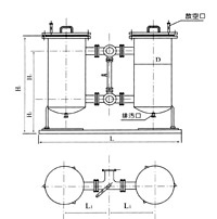
雙聯切換過濾器(SSL型) Duplex Switched Type filter

雙聯切換式過濾器,采用兩三個通球閥,將兩個單筒過濾器組裝在一個機座上,清洗過濾器時不必停車,保證其連續工作。
With two tees Ball Valve is used for double-cylinder block out filters.Two single-cylinder filter are assembled on the same seat to block out each other.when the filter is washed,it’s not necessary to shut down to ensure contionous operation.
雙聯切換過濾器“設備材質” Materials of construction:
NO | 1 | 2 | 3 | 4 | 5 |
構件 Component | 殼體 Body | 濾網 Screen Mesh | 排污堵頭 Drainage nozzle | 密封件 Gasket | 螺栓/螺母 Bolt/Nut |
材質 Material | CS SS H62 CS襯PTFE | 304 316L PTFE | CS 304 316L PTFE | 金屬纏繞 PTFE | 304 316L |
注:連接標準:HG 、GB、 ANSI、 JIS、 DIN等等.
Standard Connection:HG、GB、ANSI、JIS、DIN、ect.
操作壓力:0.6MPa——5.0MPa (150Lb——600Lb)
Operating Pressure:0.6MPa——5.0MPa (150Lb——600Lb)
雙聯切換過濾器“尺寸表” Dimension table:
DN | D | L | L1 | H1 | H2 | H3 |
50 | 273 | 1250 | 380 | 1200 | 460 | 550 |
65 | 325 | 1280 | 400 | 1200 | 475 | 550 |
80 | 377 | 1400 | 420 | 1440 | 515 | 660 |
100 | 425 | 1570 | 480 | 1480 | 540 | 690 |
150 | 520 | 1880 | 580 | 1780 | 610 | 900 |
200 | 566 | 2100 | 650 | 1880 | 680 | 900 |
雙聯切換過濾器“訂貨訂購須知” Order Construction:
1、訂貨時請注明尺寸、操作壓力、濾芯材質、過濾介質及過濾精度。
Please give indication of dimension,operating pressure。Filter element type,filter medium andpore size.
2、當需要其他標準法蘭、材質或操作壓力時請在訂貨時注明。
Please give clear indication of flange,material and operating if you need other standard.
現在的Y型過濾器一般都是安裝在管道內
2014-09-05不銹鋼BWF踴躍反洗清過濾器
2017-03-17金屬濾芯精細過濾器詳細介紹
2014-12-21進一步明確80后溪自清洗過濾器
2016-06-28夾套加熱過濾設備是印染行業污水處理有效的選擇
2014-12-08Y型過濾器的適用范圍及實踐運用的重要性
2017-05-15Y型過濾器食品加工業,水處理的好幫手
2016-06-28實話Y型過濾器的規格及尺寸
2014-09-23高效過濾器可處理飲用水,儲存廢水等高負荷工作
2017-03-19濾除雜質U型濾波器的特性
2016-05-31